Moto Map SalesNetwork
ホーム ホットニュース ラインナップ ヒストリー 保証制度 判定システム 販売店情報 レース
ラインナップ
     

ホーム -> 2008モデル -> GSX-R 1000

概説 カラー スペックシート フィーチャー ダウンロード

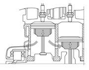
エンジン
新たにチタン製バルブを備えたニューエンジンより細かい燃料噴射と混合を可能した12孔燃料噴射機構やイリジュウムスパークプラグを採用するとともに、吸気ポートの形状を拡大して出力の増加を実現した新しいエンジンを搭載。

欧州の排ガス規制Euro3、米国の排ガス規制TIER2を達成している。
S-DMS 3つのパフォーマンス・セッティングを有するS-DMS※

2007 GSX-R1000のエンジン制御システムは前モデルの4倍の能力のECMを用いており、強大な計算能力を有する。そうした計算能力はGSX-R1000の抜きん出たエンジン効率に貢献する燃料噴射と排気システムを制御するのみならず、右ハンドルバーに搭載されたS-DMS※のスイッチを用いてライダーによる、様々な走行条件に合わせるための3つのパフォーマンス・セッティングの選択を実現している。

※S-DMS(Suzuki Drive Mode Selector)を走行中に操作すると、エンジン速度とエンジンパワーの思わぬ変動の原因になることがあります。S-DMSを操作するときは車両を停止して行ってください。

鍛造アルミ合金製ピストン 鍛造アルミ合金製ピストン

鍛造アルミ合金製ピストンは、フリクションの低減、そして効率向上ために、側面に切り欠き部分と短いスカート部を採用。

通気孔 通気孔

各シリンダーの間のピストン・ストロークの底に通気孔を設け、下降中のピストンの下に閉じ込められた空気を隣接するシリンダーに逃がすことにより、内部のポンプ圧と機械的な出力損失を低減します。

バック・トルク・リミッター付クラッチ バック・トルク・リミッター付クラッチ

シフト・ダウンをスムーズに行えるバック・トルク・リミッター付クラッチを採用。

シャーシ
シャーシ

2007 GSX-R1000はオールニュー・シャーシとなり、重心を可能な限りマシンの中心に集中させる事を含め、サーキットで得られた教訓に基づいて作られている。

フル・リーンにおいてもより精確なフィーリングをもたらすための剛性バランスを発揮すべく開発された新フレームは、中空のステアリングヘッド部、2つのメイン・スパー/スイングアーム・ピボット・プレート部、そしてスイングアーム上下のクロスブレース[左右渡し補強部]を含め、5つのアルミ合金製鋳造部品を用いて造られている。

電子制御式ステアリングダンパー 電子制御式ステアリングダンパー

新しい電子制御式ステアリングダンパーは、低速度域ではステアリングを軽くすべく少な目の減衰力、高速度域ではより多くの減衰力、という、2つの要求される機能を両立している。

フロントフォーク フロントフォーク

フロントフォークは、倒立式56mm径のアウターチューブとこれまで同様DLCコーティングが施されている43mm径のインナーチューブを採用。

調整可能なフットペグや操作系 調整可能なフットペグや操作系

2007 GSX-R1000のフットペグは調整可能で、水平と上下方向に14mmの範囲の中で3段階の位置に変更する事が出来る。右側のリヤブレーキ・ペダルとマスターシリンダー、左側のシフトレバーはそれぞれのフットペグ部品と連動している。

インストルメントパネル インストルメントパネル

インストルメントパネルは、ステップモーター制御のアナログ式タコメーター、デジタル式液晶スピードメーター、ツイン液晶トリップメーター、液晶時計、液晶水温計/燃焼噴射警告灯、液晶ギヤポジション・インジケーターそしてプログラムする事が可能なLEDエンジン回転数インジケーターランプなどを備える。新しい液晶エンジン・モード・インジケーターはライダーがいずれのパフォーマンス・セッティングを選択したのか表示する。
※仕様地により異なります。

スタイリング

風洞実験を重ねて開発された2007GSX-R1000のボディワークはアグレッシブなスタイルを持ち、優れた空力性能のために前面投影面積を全体的に小さくしている。ウィンドスクリーンはわずかながら高さを増し、ライダーが伏せた姿勢をとるのをより楽にしている。

幅の狭くなったシートとフレームカバーはコーナリングの際のライダーの横方向の体重移動をより楽にし、同時に停止時にライダーの足が地面に触れるのに貢献している。

フロント リア

※この仕様は改良のため予告なく変更する場合があります。
※このページに掲載されている画像は、すべて2007年モデルです。
ページの先頭へ
 
2018モデル
GSX-R1000R
GSX-R1000 ABS
GSX-R750
HAYABUSA
GSX-S1000F
GSX-S1000
2017モデル
GSX-R1000R
GSX-R1000 ABS
GSX-S1000F
GSX-S1000
GSX-R750
GSX-R600
HAYABUSA
2016モデル
HAYABUSA
GSX-R1000
GSX-R750
GSX-R600
GSX-S1000
GSX-S1000F
BOULEVARD M109R
2015モデル
HAYABUSA
GSX-R1000
GSX-R750
GSX-R600
V-STROM 1000 ABS
V-STROM 650 ABS
GSR750 / GSR750ABS
GLADIUS ABS
BOULEVARD M109R
2014モデル
HAYABUSA
GSX-R1000
GSX-R750
GSX-R600
GSR750 / GSR750ABS
GLADIUS ABS
V-STROM 1000 ABS
V-STROM 650 ABS
BOULEVARD M109R
2013モデル
HAYABUSA
GSX-R1000
GSX-R750
GSX-R600
GSR750 / GSR750ABS
GLADIUS ABS
V-STROM 650 ABS
GSR750ABS
2012モデル
HAYABUSA1300
GSX-R1000
GSX-R750
GSX-R600
GSR750
GSR750ABS
GLADIUS ABS
V-STROM 650 ABS
2011モデル
BOURVARD M109R
HAYABUSA1300
GSX-R1000
GSX-R750
GSX-R600
GSR750
GLADIUS/GLADIUS ABS
V-STROM 650/V-STROM 650 ABS
2010モデル
BOURVARD M109R
HAYABUSA1300
GSX-R1000
GSX-R750
GSX-R600
GLADIUS/GLADIUS ABS
GSR600A ABS
V-STROM650 ABS
2009モデル
BOURVARD M109R
BOURVARD M109R2
BOURVARD C109R
HAYABUSA1300
GSX-R1000
GSX-R750
GSX-R600
GLADIUS/GLADIUS ABS
GSR600A ABS
SV650S ABS
V-STROM650 ABS
DR650SE
2008モデル
BOURVARD M109R
BOURVARD M109R2
BOURVARD C109R
HAYABUSA1300
B-KING/B-KING ABS
GSX-R1000
GSX-R750
GSX-R600
GSR600A ABS
SV650S ABS
V-STROM1000
V-STROM650 ABS
DR650SE
2007モデル
BOURVARD M109
HAYABUSA1300
GSX-R1000
GSX-R600
GSR600
V-STROM1000
V-STROM650
DR650SE
SV650S
SV650
2006モデル
GSX-R1000
GSX-R600
HAYABUSA1300
GSR600
BOULEVARD M109
2005モデル
GSX-R1000
GSX-R750
GSX-R600
HAYABUSA1300
V-STROM1000
V-STROM650
DR650SE
DR-Z 125L
会社情報リサイクルサイトマップリンク
Copyright(C)MOTOMAP All Rights Reserved.